Absolute Gutter Profile and Specifications

Get Absolute Gutter Protection
Learn More About Our Products
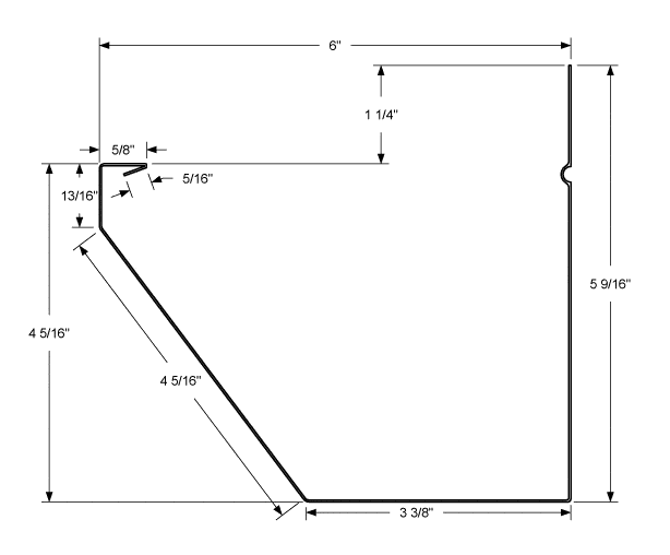
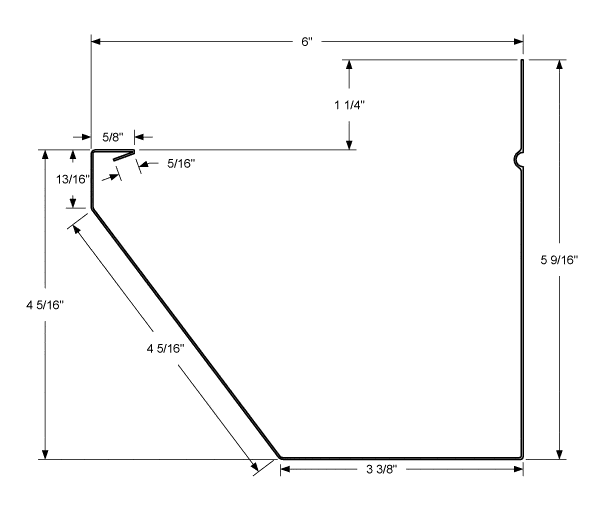
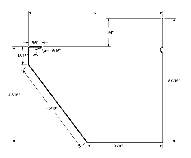
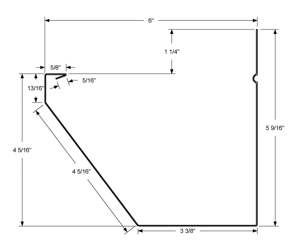
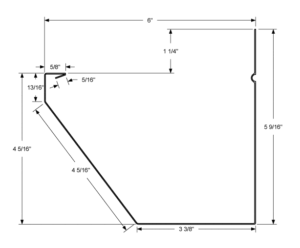
Profile and Specifications

Absolute Gutters™ are made of .032 aluminum. They are custom bent on site to the needed length, with the desired profile. Absolute Gutters™ are bent so that the back of the gutter remains 1″ higher than the front lip to allow water to escape over the front of the gutter, rather than submerging the fascia board and roof edge. Standard gutters are 5″ deep, but Absolute Gutters™ are 6″ deep. This allows the system to hold 40% more water than standard gutters. Even with their larger size, Absolute Gutters™ are built to accommodate any gutter protection system on the market today.
Innovative Solutions for Your Home
Our Gutter Systems Offer Absolute Protection
Learn More About Our Exclusive Products
Featured Customer Review
We chose Absolute Gutter because of the quality of the product. My gutter replacement went seamlessly.
Interested In Becoming A Dealer?
Exclusive Territories Available
We'll Help You Get Started!

Explore Our Gutter Systems
See What Our Customers Have To Say
Featured Customer Review
We love the way the Absolute Gutters look on our home! Very pleased with our choice. The Leafproof gutter system is very slick, no problems with it at all.
Contact Us

Mon-Fri: 7AM-5PM
